Designing Better, Not Bigger

Tags

Designing Better not bigger - Crane image

Imagine if your home could update as easily as technology in your life does.

These updates might be alteration to the function of a space, the scale and size of living areas, re-programming of the layout or reconfiguration of spatial relationships. Modulation of base structures allows for these changes to happen efficiently.

By providing a dwelling type that has the flexibility to change, the project looks to improve sustainability and establish additional pathways towards property ownership.

Start small, affordable – then easily modify or scale up when you need to.
Blocks
Title
Start small, affordable – then easily modify or scale up when you need to.
Blocks
Content
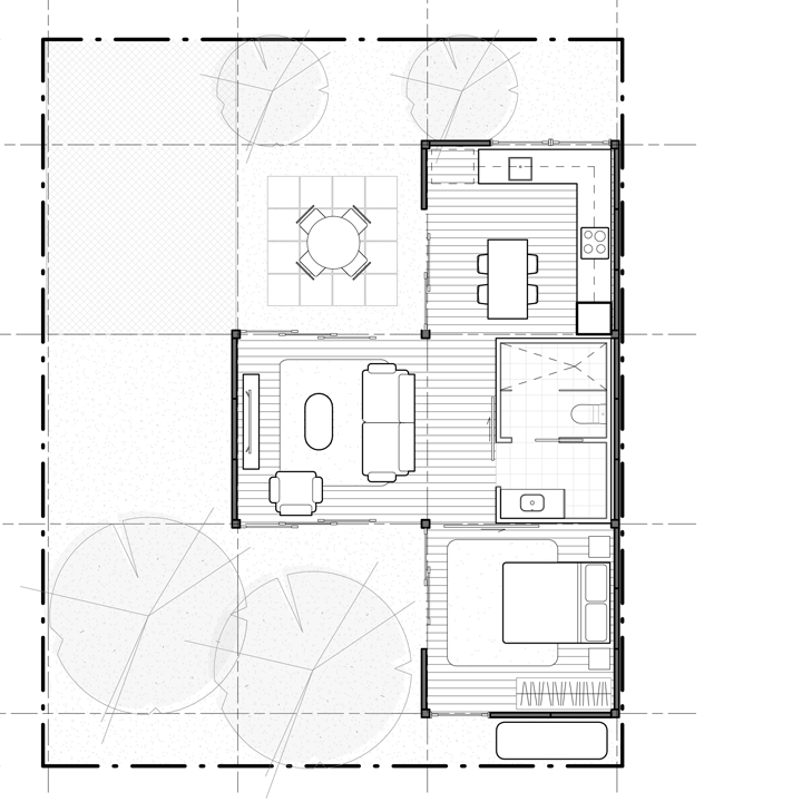
Ground Floor Plan - Z Series Base / Scaled Up
Ground Floor Plan - Z Series Base / Scaled Up
Image slide
Image
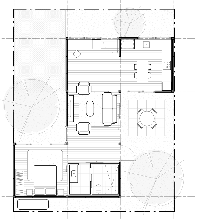
Elevation - Z Series Base
Image caption

Elevation - Z Series Base

Image
Elevation - Z Series Base
Image caption

Elevation - Z Series Base

Content

We have proposed 3 simple, single storey base models to suit compact blocks, that incorporate:

  • Living area
  • Dining area
  • Kitchen zone
  • Wet-area hub
  • Main bedroom
  • Secondary bedroom / living space

Residents have the choice to add additional modular spaces including as an upper storey at the point of purchase, or in the future, as their requirements change. The model becomes a cellular system that allows users to expand, subtract, or substitute the layout of the dwelling.

Image
MOLDULES
Content
3.6m x 3.6m

We started this project by exploring the minimum acceptable module for living and amenity space that would accommodate standard furniture items and allow maximum flexibility of spatial use and arrangement.

Through the process of deconstruction of apartment living principles, we arrived at a 3.6 x 3.6 module that works to:

  • Create efficient living and dining spaces
  • Accommodate kitchen and seating area
  • Contain wet areas with connecting circulation spaces
  • Create opportunities for study spaces and vertical connections

We have extended the use of the 3.6m x 3.6m module to external spaces, structuring areas into outdoor living, services zone and parking (if necessary).

Vertical extension of the dwelling allows evolution from the compact nature of single story options, introducing light wells and voids. The voids include elevated connectors with gallery libraries and opportunities for study space integration.

Content
Z Series
Test caption - Z series
Content

Each of the modules are housed within the same structural skeleton, which has the opportunity for alteration based on program requirements, orientation or user preference. These alterations may include:

  • Selection of opening types and location
  • Variation in cladding finishes
  • Connection to future modules
  • Fire protection requirements

Limiting the span of the structural elements to 3.6m centre to centre minimises the structural profiles required and creates opportunities for future connections. Each module is designed structurally to withstand the loads of the full scaled extension, which means that the footing and frame design is already in place for future upper levels.

The construction industry has reached a tipping point.

Now net zero emissions is urgent. General understanding of the benefits of waste minimisation and circular economy practices is generating greater attention. Up to 30% of construction materials delivered to a typical site can end up as waste.

Scalable Modular Housing that is prefabricated has the potential to:

  • Create homes that respond to the expectations of the users
  • Integrate current technologies during production and operation to reduce their carbon footprint
  • Reduce waste in material production, transport and during construction
  • Increase speed and efficiency of construction
  • Reduce cost of construction, creating a more affordable dwelling overall
Image
Exploded Axonometric - Typical Base Module
Content
Precinct Elevation - Base
Precinct Elevation - Base
Image
Precinct Elevation - Scaled Up
Precinct Elevation - Scaled Up

 

 
A New Estate Case Study

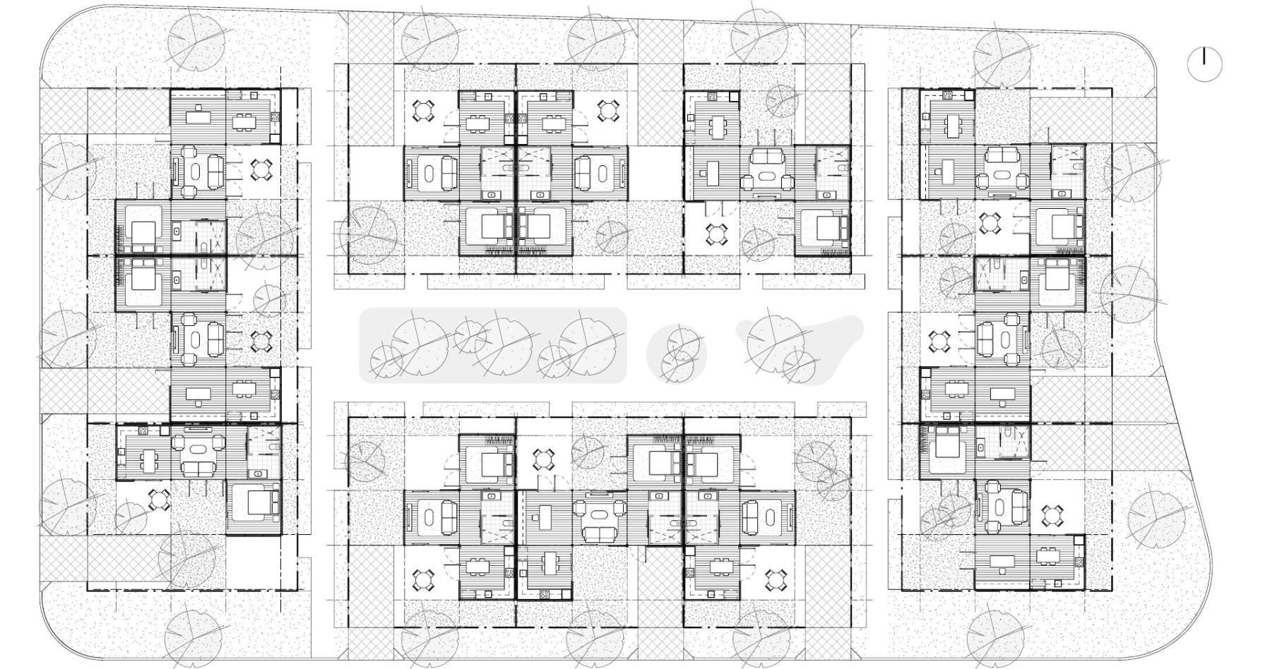
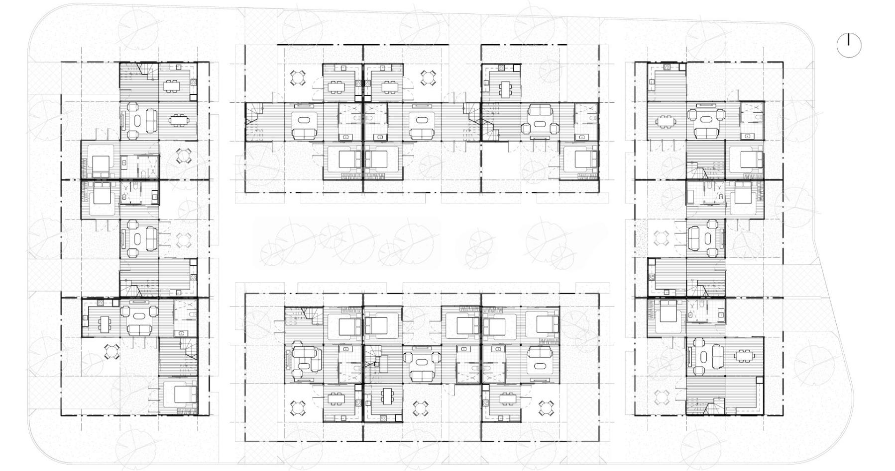
We have developed the minimal possible site plan that can accommodate the proposed scalable series, a compact block type, that would allow:

  • Landscape and deep-root planting areas
  • Consideration towards overshadowing and solar access
  • Efficiency in building footprint
  • One parking space at the start of the project, if needed

Parking is specifically relevant to new estate developments where connection to services and employment is poor. The parking space is designed for conversion in the future, if planning regulations allow, to greater outdoor space or for dwelling expansion or construction of stand-alone studios. Alternatively precinct planning strategies could accommodate parking in a central off-site location.

 

We have shown how this site plan can be integrated on a conceptual precinct based in the future stages of the Ginninderry new estate development in Canberra.

Our investigation considered the following particular challenges:

  • Establishing a balance between controls that protect public and neighbours’ amenity while maximising the development potential of micro-lots.
  • Creating a model through which developers will be encouraged to undertake this form of staged residential development, while fully recuperating the land and infrastructure costs either upfront or over time.


 

Blocks
Image slide
Image
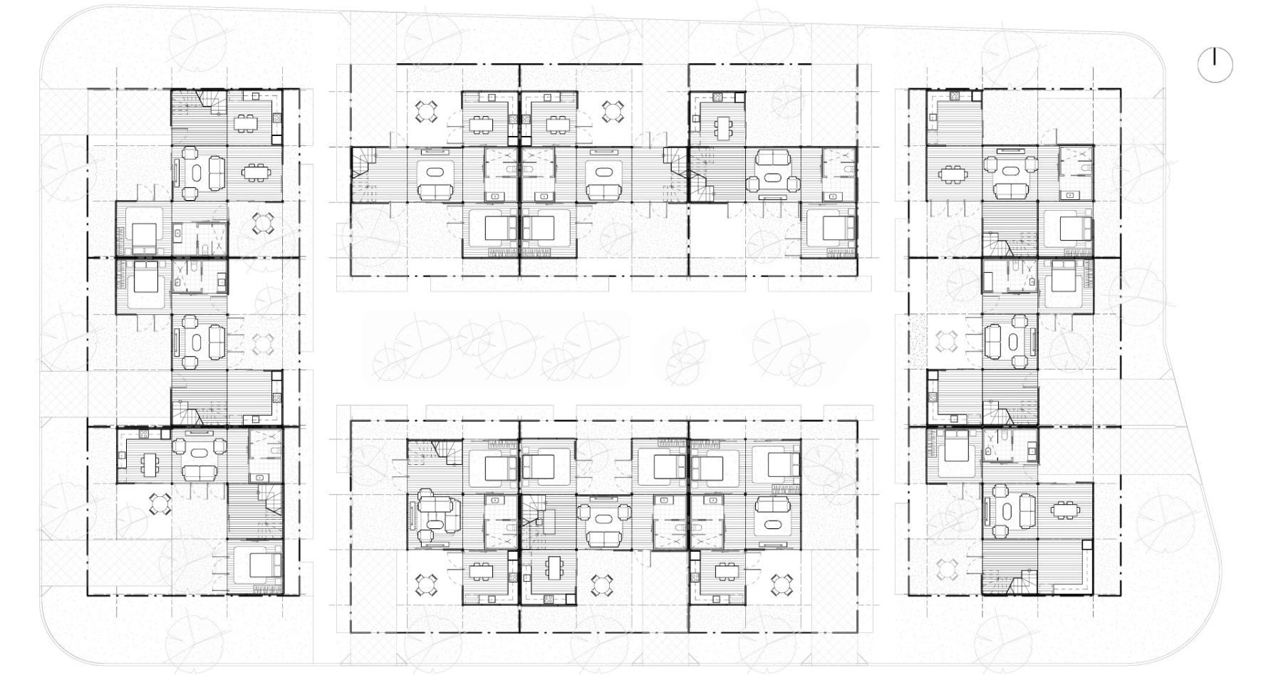
Precinct Site Plan (Ground Floor) - Base
Image caption

Precinct Site Plan (Ground Floor) - Base

Image
Precinct Site Plan (Ground Floor) - Scaled Up
Image caption

Precinct Site Plan (Ground Floor) - Scaled Up

Image
Precinct Site Plan (Upper Floor) - Scaled Up
Image caption

Precinct Site Plan (Upper Floor) - Scaled Up

Content
Download

Our full report is available for downlaod from the Alastair Swayn Foundation:
Swayn Open Research – Designing Better, Not Bigger

Get in touch

Have a project in mind? Work with Trella from vision to reality and create something meaningful. Start the conversation now via hello@trella.com.au